PROJECTS

METROPOLIS

ARCHITECTURE PLLC

301 N. Main Street Suite 1204

Winston-Salem, North Carolina 27101

336.725.1400

 

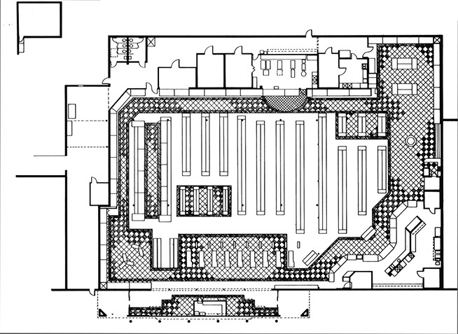
This project was a 30,000 SF renovation and expansion on a previous grocery store. The project included an interior space plan and fixture layout that was the model for future Harris Teeter upfits. The project also included a design for the renovation of the Golden Gate Shopping Center in Greensboro, NC.

MARTY MARION w/OMNI ARCHITECTURE

JOHN WELLER: ARCHITECT OF RECORD

PROJECTS